mardi 31 mai 2016

Et les Drums dans tout ça? Schématiques TR-606 et TR-9090

Bon les Drums,c'est comme la Basse, j'aime bien.
Et pour ceux qui auront remarqué 606 à l'envers ça fait 909 xD
Du coup voila pour vous :

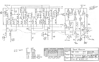
Roland TR-606












Roland TR-9090


Ces Schématiques sont une création de Trevor Page

Site du Projet TR9090

Je ne fait que le mirroir de choses disponibles sur son site.
Le front Panel de la mienne sera fortement inspiré de ça :


Et pour les schématiques ca nous donne :












Les Cousins de RDH Hi-Fi avec une dubplate à eux =)


Avec Ce qu'ils font en DIY je vous conseille leur site =)


Miiightyyyyyy MAAAASSSAAAAAAAAAAA!



Martin Campbell , dat voice...



Interlude Sound-System, suite , une Dubplate King Alpha par Word Sound and Power



Interlude Sound-System avec les petits suisses d'OBF et une dubplate Mad Codiouf!


Le retour de bâton , c'est pas lorsque on met une adaptation de Façade au lieu de l'original?


Schématiques Originales Tellun + Façades Avant

Schématiques Originales Tellun 


J'ai pas trouvé de LFO dispo ou Convenable exactement pour cette fonction chez Buchla.

Dans mes recherches je suis tombé sur les Modules Tellun DIY
(lien dispo dans la section à cet effet).
Je vous encourage à acheter ses modules, ils sont vraiment sympa.
Ce que je relate ici n'est qu'un re-dit de ce que l'on peux trouver sur leur site.

6 Modules ont retenu mon attention :

Tellun 132 Dual VCA


Cet ampli possède des paramétrages sympas.







Tellun 156 Neural Agonizer Spring Reverb


Une autre Reverb avec un rendu "torturé"









Tellun 428 Dual VCF


Un filtre avec des paramétrages sympas






Tellun 712 DoomsDay Machine LFO


Le Pourquoi du "Wouha,c'est quoi ces modules Tellun"









Tellun 861 Logic Generator


Un module de Logique. Hyper pratique








Tellun 866 Sample&Hold Gate Processor


Un Sample&Hold



Schématiques Originales Buchla Série 200 + Façades Avant

Schématiques Buchla Série 200

Buchla 207 - Mixer Preamp 



Buchla 216 - Touch Keyboard  




Buchla 230 - Envelope Follower  



Buchla 242 - Sequential CV Source   



(Merci MechaSeb pour la remarque , la première que j'avais mise était une adaptation de Mark Verbos à laquelle il manque soit dit en passant quelques fonctions sur le panel =) )
La voici pour info:




Buchla 246 - 16 Steps Advanced Sequencer





Buchla 259 - Complex VCO 







Buchla 266 - Uncertainty Source 






Buchla 281 - Saw-Square VCO  



Buchla 284 - Envelope  Generator 



Buchla 291 - BandPass VCF 




Buchla 292 - Quad CV LowPass  




Buchla 295 - 10 Channels Fixed Filter 



Buchla 208 - Complex sound Programmer